Проектирование инженерных систем дома под ключ 750 ₽/м2

Проектирование инженерных систем дома под ключ 750 ₽/м2

Инженерный проект
частного дома

Заказывая проектирование инженерных систем для частного дома
в архитектурном бюро Регины Зиминой, вы минимизируете возможные ошибки,
потому что работаете с одним подрядчиком.

Проектирование инженерных систем дома под ключ 750 ₽/м2

Разработка и согласование конструктивного проекта

Проектирование инженерных систем дома под ключ 750 ₽/м2

Разработка и согласование конструктивного проекта

Проектирование «под ключ»

От подбора оборудования до комплексного обслуживания.

Индивидуальные условия

Отправим коммерческое предложение с гарантией 3 года.

Согласуем проект

Выполняем необходимые согласования вместе с заказчиком.

Сократим затраты

Благодаря рациональному проектированию мы сокращаем затраты.

Проекты инженерных сетей дома

Проект отопления частного дома

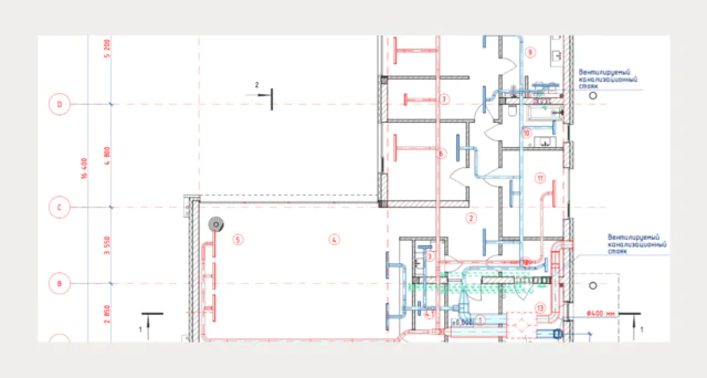
Проект вентиляции

Схема приточно-вытяжной вентиляции под плитой перекрытия для частного дома в Минске, 185 м 2

Проект отопления частного дома

Проект отопления

Проектирование отопления частного дома в Подмосковье, 250 м 2

Проект водоснабжения

Проект водоснабжения

Проектирование водоснабжения и канализации для частного дома в Подмосковье, 250 кв. м.

Показано 3 из 35 проектов

Вы получите

Полный состав инженерной документации для частного дома

  • Отопление
  • Вентиляция и кондиционирование
  • Водоснабжение и канализация
  • Электроснабжение и освещение
  • Газоснабжение

Проект отопления дома

Проектирование системы отопления дома

Подготовим проект под ваши потребности, подберем идеальный тип отопительной системы, параметры котельной, теплого пола, радиаторов.

Проект вентиляции дома

Проект вентиляции и кондиционирования для частного дома

Подберем оптимальный тип вентиляционной системы под ваши нужды, предоставим Схемы размещения элементов вентиляционной системы, расчеты и спецификации оборудования.

Проект водопровода и канализации дома

Проект водоснабжения и канализации частного дома

Предложим оптимальный тип разводки, учитывая тип подключения, точки забора воды и интенсивности использования. Определим способы прокладки труб и материалы.

Проект электроснабжения дома

Проектирование электроснабжения частного дома

Исходя из сметы по осветильному оборудованию, рассчитаем мощность питающей сети и нагрузку на сеть для каждой комнаты. Подготовим поэтажные планы дома с кабельными трассами, щитовым и силовым оборудованием, светильниками и розетками.

Проект газоснабжения дома

Заказать проект газоснабжения частного дома

Разрабатываем комплексный проект с подбором оборудования, расчетами и схемами монтажа. Подскажем, как эксплуатировать и обслуживать систему, чтобы защитить ее от внешних воздействий.

Средний рейтинг
Еще нет оценок